Doppelhaus Sonnenreigen, Seerosenweg 36

Doppelhaus
Privater Seezugang
Erdwärme
Photovoltaik
Energiesparend
Alleineigentum
Nähe Wien

Symbolfoto

Verfügbar

Kaufpreis

652.000 €

Wohnfläche

125,90 m²

Grundstücksfläche

337,99 m²

Miete pro Monat

Keine Mietoption vorhanden

Mietkauf-Option

Ja

Adresse

Seerosenweg 36
3484 Grafenwörth
Österreich
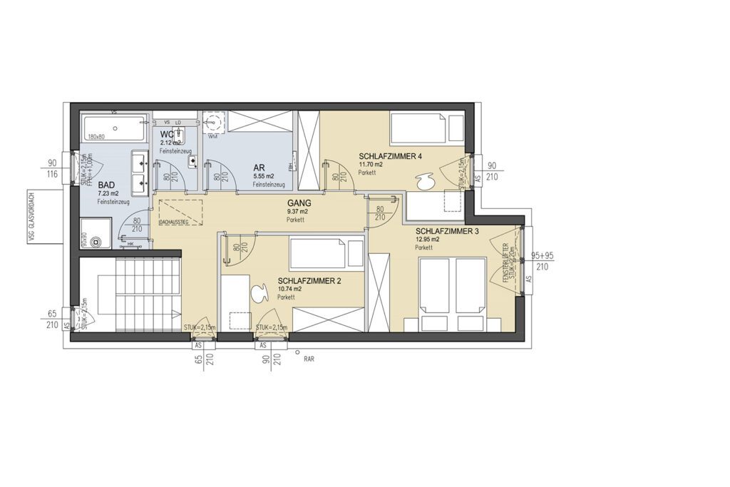
Download Grundriss

Terrasse EG

20,95 m²

Terrasse OG

-

Gartenhütte

6,15 m²

Räume

5

PKW-Stellplätze

2

Ausrichtung Terrasse

Osten

Plan & Lage

Perfekte Lage

Zwischen Wien und der Wachau

Der Sonnenweiher liegt in Grafenwörth in der Nähe von Schloss Grafenegg. Die naturbelassenen Donauauen im Süden. Der bis zu 40 Meter hohe, langgestreckte Höhenzug des Wagram im Norden. Nur 15 bis 20 Autominuten entfernt von Krems im Westen und Tulln im Osten. 25 Minuten von St. Pölten. Und 35 Minuten von der Wiener Stadtgrenze. Die naheliegende Franz-Josefs-Bahn ist mit dem Fahrrad leicht erreichbar und verbindet den Wagram mit Wien.

Sonnenweiher  „Sonnenreigen“ – das komfortable Doppelhaus

Im Doppelhaus Sonnenreigen erleben Sie auf rund 126 m² Wohnfläche und fünf Zimmern, wie Wohnraum mit Garten und See optimal miteinander verschmelzen. Vom lichtdurchfluteten Wohnraum im Erdgeschoß gelangen Sie über drei Ausgänge in Ihren Garten, der – erste Reihe fußfrei – direkt am See liegt. Auf der gemütlichen Terrasse genießen Sie nach dem Baden Ihren Sundowner. Ein separates Zimmer im Erdgeschoß sowie drei weitere Zimmer im Obergeschoß bieten Ihnen ausreichend Platz für Familie, Hobbies oder Arbeiten mit Seeblick.

Nachhaltigkeit, Qualität & Effizienz der Umwelt zu Liebe

Unsere Seehäuser überzeugen durch ihre herausragende Energieeffizienz und Nachhaltigkeit. Dank der hochwertigen Ziegelbauweise und der modernen Wärmepumpe profitieren Sie von einem besonders energiesparenden Wohnkonzept. Dieses sorgt nicht nur für ein angenehmes Raumklima, sondern ermöglicht Ihnen sparsames Wohnen.

Geringer Energiebedarf

Sparsames Wohnen

Sole-Wasser-Wärmepumpe

Sole-Wasser-Wärmepumpe

Photovoltaik

Photovoltaik-Anlage

Fußbodenheizung

Fußbodenheizung

Fenster

Holz-Alu-Fenster mit 3-fach-Verglasung

Parkplätze

2 PKW-Stellplätze pro Haus

E-Ladestation

E-Ladestation vorbereitet

Sonnenschutz

Außenliegender Sonnenschutz

Ziegelbauweise

Ziegelbauweise

Breitbandversorgung

Breitbandversorgung

Kontakt & Anfrage

Felder, die mit einem * gekennzeichnet sind, sind Pflichtfelder.
Vorwahl
keyboard_arrow_down
No entries found

Sie können uns gern auch direkt per E-Mail kontaktieren: anfrage@mein-haus-am-see.at

Unser Kooperationspartner beraten Sie gerne.

Für unverbindliche Kauf-Anfragen oder Besichtigungstermine zu unseren Häusern am See – Einfamilien-, Doppel- und Reihenhäuser – kontaktieren Sie bitte unsere Vertriebspartner:

Dr. Funk Immobilien GmbH & Co KG
Prok. Walter Mitterstöger, MA
ICONIA GmbH
Clemens Gamlich, MA
RE/MAX Balance
Harald Seitner