Doppelhaus Wellenklang, Seepromenade 4

Doppelhaus
Privater Seezugang
Erdwärme
Photovoltaik
Energiesparend
Alleineigentum
Nähe Wien

Symbolfoto

Reserviert

Kaufpreis

Auf Anfrage

Wohnfläche

116,88 m²

Grundstücksfläche

391,14 m²

Miete pro Monat

Keine Mietoption vorhanden

Mietkauf-Option

Ja

Adresse

Seepromenade 4
3484 Grafenwörth
Österreich
Download Grundriss

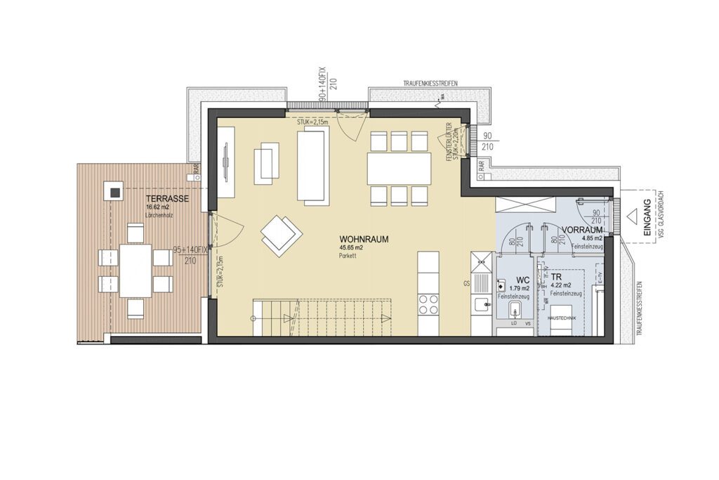
Terrasse EG

16,62 m²

Terrasse OG

-

Gartenhütte

6,15 m²

Räume

4

PKW-Stellplätze

2

Ausrichtung Terrasse

Westen

Plan & Lage

EG, Seepromenade 4
EG, Seepromenade 4
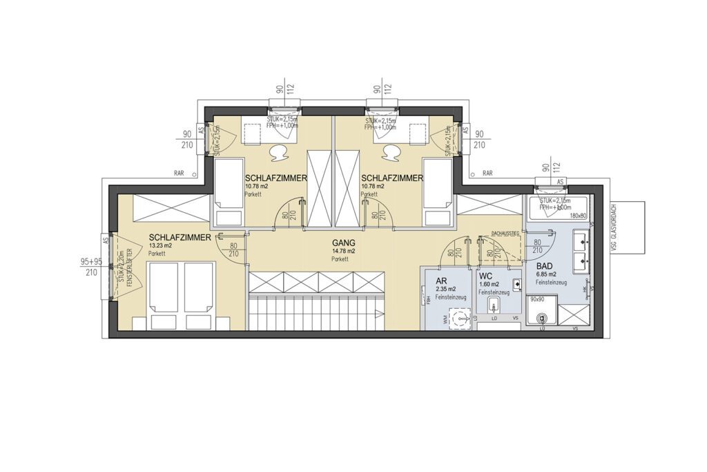
OG, Seepromenade 4
OG, Seepromenade 4

Perfekte Lage

Zwischen Wien und der Wachau

Der Sonnenweiher liegt in Grafenwörth in der Nähe von Schloss Grafenegg. Die naturbelassenen Donauauen im Süden. Der bis zu 40 Meter hohe, langgestreckte Höhenzug des Wagram im Norden. Nur 15 bis 20 Autominuten entfernt von Krems im Westen und Tulln im Osten. 25 Minuten von St. Pölten. Und 35 Minuten von der Wiener Stadtgrenze. Die naheliegende Franz-Josefs-Bahn ist mit dem Fahrrad leicht erreichbar und verbindet den Wagram mit Wien.

Sonnenweiher  „Wellenklang“ – das komfortable Doppelhaus

Einfach heimkommen, rein ins Freizeitoutfit und geradewegs durch den eigenen Garten direkt ins kühle Nass – so lässt sich das Wohngefühl im Doppelhaus Wellenklang beschreiben. Sie wohnen auf rund 117 m² Wohnfläche mit vier Zimmern direkt am See. Ein heller Wohnraum mit offener Küche im Erdgeschoß, drei Schlafzimmer im Obergeschoß. Bei der Planung wurde vom Architekten darauf geachtet, dass die Räume leicht einzurichten sind. Der breite Gang etwa bietet zusätzlichen Stauraum. Auf Ihrer wettergeschützten Terrasse können Sie dem Treiben am See zusehen und gleichzeitig Ihre Privatsphäre genießen.

Nachhaltigkeit, Qualität & Effizienz der Umwelt zu Liebe

Unsere Seehäuser überzeugen durch ihre herausragende Energieeffizienz und Nachhaltigkeit. Dank der hochwertigen Ziegelbauweise und der modernen Wärmepumpe profitieren Sie von einem besonders energiesparenden Wohnkonzept. Dieses sorgt nicht nur für ein angenehmes Raumklima, sondern ermöglicht Ihnen sparsames Wohnen.

Geringer Energiebedarf

Sparsames Wohnen

Sole-Wasser-Wärmepumpe

Sole-Wasser-Wärmepumpe

Photovoltaik

Photovoltaik-Anlage

Fußbodenheizung

Fußbodenheizung

Fenster

Holz-Alu-Fenster mit 3-fach-Verglasung

Parkplätze

2 PKW-Stellplätze pro Haus

E-Ladestation

E-Ladestation vorbereitet

Sonnenschutz

Außenliegender Sonnenschutz

Ziegelbauweise

Ziegelbauweise

Breitbandversorgung

Breitbandversorgung

Kontakt & Anfrage

Dieses Doppelhaus ist bereits reserviert. Wir freuen uns dennoch über Ihre Anfrage und schreiben Sie gerne auf die Warteliste.

Felder, die mit einem * gekennzeichnet sind, sind Pflichtfelder.
Vorwahl
keyboard_arrow_down
No entries found

Sie können uns gern auch direkt per E-Mail kontaktieren: anfrage@mein-haus-am-see.at

Unser Kooperationspartner beraten Sie gerne.

Für unverbindliche Kauf-Anfragen oder Besichtigungstermine zu unseren Häusern am See – Einfamilien-, Doppel- und Reihenhäuser – kontaktieren Sie bitte unsere Vertriebspartner:

Prok. Walter Mitterstöger, MA
Clemens Gamlich, MA