Doppelhaus Wellenklang, Seerosenweg 40

Doppelhaus
Privater Seezugang
Erdwärme
Photovoltaik
Energiesparend
Alleineigentum
Nähe Wien
Verfügbar
Bezugsfertig: Q4/25

Kaufpreis

612.000 €

Wohnfläche

116,88 m²

Grundstücksfläche

337,20 m²

Miete pro Monat

Keine Mietoption vorhanden

Mietkauf-Option

Ja

Adresse

Seerosenweg 40
3484 Grafenwörth
Österreich
Download Grundriss

Terrasse EG

16,62 m²

Terrasse OG

-

Gartenhütte

6,15 m²

Räume

4

PKW-Stellplätze

2

Plan & Lage

Perfekte Lage

Zwischen Wien und der Wachau

Der Sonnenweiher liegt in Grafenwörth in der Nähe von Schloss Grafenegg. Die naturbelassenen Donauauen im Süden. Der bis zu 40 Meter hohe, langgestreckte Höhenzug des Wagram im Norden. Nur 15 bis 20 Autominuten entfernt von Krems im Westen und Tulln im Osten. 25 Minuten von St. Pölten. Und 35 Minuten von der Wiener Stadtgrenze. Die naheliegende Franz-Josefs-Bahn ist mit dem Fahrrad leicht erreichbar und verbindet den Wagram mit Wien.

Sonnenweiher  „Wellenklang“ – das komfortable Doppelhaus

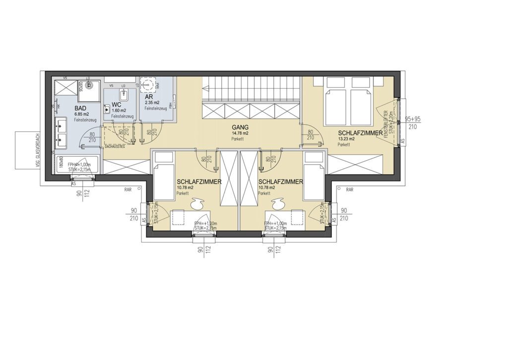
Einfach heimkommen, rein ins Freizeitoutfit und geradewegs durch den eigenen Garten direkt ins kühle Nass – so lässt sich das Wohngefühl im Doppelhaus Wellenklang beschreiben. Sie wohnen auf rund 117 m² Wohnfläche mit vier Zimmern direkt am See. Ein heller Wohnraum mit offener Küche im Erdgeschoß, drei Schlafzimmer im Obergeschoß. Bei der Planung wurde vom Architekten darauf geachtet, dass die Räume leicht einzurichten sind. Der breite Gang etwa bietet zusätzlichen Stauraum. Auf Ihrer wettergeschützten Terrasse können Sie dem Treiben am See zusehen und gleichzeitig Ihre Privatsphäre genießen.

Nachhaltigkeit, Qualität & Effizienz der Umwelt zu Liebe

Unsere Seehäuser überzeugen durch ihre herausragende Energieeffizienz und Nachhaltigkeit. Dank der hochwertigen Ziegelbauweise und der modernen Wärmepumpe profitieren Sie von einem besonders energiesparenden Wohnkonzept. Dieses sorgt nicht nur für ein angenehmes Raumklima, sondern ermöglicht Ihnen sparsames Wohnen.

Geringer Energiebedarf

Sparsames Wohnen

Sole-Wasser-Wärmepumpe

Sole-Wasser-Wärmepumpe

Photovoltaik

Photovoltaik-Anlage

Fußbodenheizung

Fußbodenheizung

Fenster

Holz-Alu-Fenster mit 3-fach-Verglasung

Parkplätze

2 PKW-Stellplätze pro Haus

E-Ladestation

E-Ladestation vorbereitet

Sonnenschutz

Außenliegender Sonnenschutz

Ziegelbauweise

Ziegelbauweise

Breitbandversorgung

Breitbandversorgung

Kontakt & Anfrage

Bitte auswählen
keyboard_arrow_down
Frau
Herr
Divers
No entries found
RM_R:choose_country
keyboard_arrow_down
-
Andorra
Vereinigte Arabische Emirate
Afghanistan
Antigua und Barbuda
Anguilla
Albanien
Armenien
Niederländische Antillen
Angola
Antarktis
Argentinien
Amerikanisch-Samoa
Österreich
Australien
Aruba
Åland
Aserbaidschan
Bosnien und Herzegowina
Barbados
Bangladesch
Belgien
Burkina Faso
Bulgarien
Bahrain
Burundi
Benin
Bermuda
Brunei Darussalam
Bolivien
Brasilien
Bahamas
Bhutan
Bouvetinsel
Botswana
Belarus (Weißrussland)
Belize
Kanada
Kokosinseln (Keelinginseln)
Kongo
Zentralafrikanische Republik
Republik Kongo
Schweiz
Elfenbeinküste
Cookinseln
Chile
Kamerun
China, Volksrepublik
Kolumbien
Costa Rica
Kuba
Kap Verde
Weihnachtsinsel
Zypern
Tschechische Republik
Deutschland
Dschibuti
Dänemark
Dominica
Dominikanische Republik
Algerien
Ecuador
Estland
Ägypten
Westsahara
Eritrea
Spanien
Äthiopien
Finnland
Fidschi
Falklandinseln (Malwinen)
Mikronesien
Färöer
Frankreich
Gabun
Großbritannien
Grenada
Georgien
Französisch-Guayana
Guernsey (Kanalinsel)
Ghana
Gibraltar
Grönland
Gambia
Guinea
Guadeloupe
Äquatorialguinea
Griechenland
Südgeorgien und die Südl. Sandwichinseln
Guatemala
Guam
Guinea-Bissau
Guyana
Hongkong
Heard- und McDonald-Inseln
Honduras
Kroatien
Haiti
Ungarn
Indonesien
Irland
Israel
Insel Man
Indien
Britisches Territorium im Indischen Ozean
Irak
Iran
Island
Italien
Jersey (Kanalinsel)
Jamaika
Jordanien
Japan
Kenia
Kirgisistan
Kambodscha
Kiribati
Komoren
St. Kitts und Nevis
Nordkorea
Südkorea
Kuwait
Kaimaninseln
Kasachstan
Laos
Libanon
St. Lucia
Liechtenstein
Sri Lanka
Liberia
Lesotho
Litauen
Luxemburg
Lettland
Libyen
Marokko
Monaco
Moldawien
Madagaskar
Marshallinseln
Mazedonien
Mali
Myanmar (Burma)
Mongolei
Macau
Nördliche Marianen
Martinique
Mauretanien
Montserrat
Malta
Mauritius
Malediven
Malawi
Mexiko
Malaysia
Mosambik
Namibia
Neukaledonien
Niger
Norfolkinsel
Nigeria
Nicaragua
Niederlande
Norwegen
Nepal
Nauru
Niue
Neuseeland
Oman
Panama
Peru
Französisch-Polynesien
Papua-Neuguinea
Philippinen
Pakistan
Polen
St. Pierre und Miquelon
Pitcairninseln
Puerto Rico
Palästina
Portugal
Palau
Paraguay
Katar
Réunion
Rumänien
Russische Föderation
Ruanda
Saudi-Arabien
Salomonen
Seychellen
Sudan
Schweden
Singapur
St. Helena
Slowenien
Svalbard und Jan Mayen
Slowakei
Sierra Leone
San Marino
Senegal
Somalia
Suriname
São Tomé und Príncipe
El Salvador
Syrien
Swasiland
Turks- und Caicosinseln
Tschad
Französische Süd- und Antarktisgebiete
Togo
Thailand
Tadschikistan
Tokelau
Timor-Leste
Turkmenistan
Tunesien
Tonga
Türkei
Trinidad und Tobago
Tuvalu
Taiwan
Tansania
Ukraine
Uganda
Amerikanisch-Ozeanien
Vereinigte Staaten von Amerika
Uruguay
Usbekistan
Vatikanstadt
St. Vincent und die Grenadinen
Venezuela
Britische Jungferninseln
Amerikanische Jungferninseln
Vietnam
Vanuatu
Wallis und Futuna
Samoa
Jemen
Mayotte
Südafrika
Sambia
Simbabwe
Serbien
Montenegro
Saint-Barthélemy
Bonaire, Sint Eustatius und Saba
Curaçao
Saint-Martin (franz. Teil)
Sint Maarten (niederl. Teil)
Südsudan
No entries found
Vorwahl
keyboard_arrow_down
No entries found
Bitte auswählen
keyboard_arrow_down
-
Immobilienplattform (z.B. willhaben, immobilienscout24 etc.)
Online-Werbung
Social Media (Facebook, Instagram, ...)
Zeitung
Außenwerbung (Plakat, Videowall, Streetbranding, Bus, etc.)
U-Bahnwerbung
Werbemittel (Flyer, Broschüre, Postwurf, Postkarte, etc.)
Sonstiges
No entries found

Unser Kooperationspartner beraten Sie gerne.

Für unverbindliche Kauf-Anfragen oder Besichtigungstermine zu unseren Häusern am See – Einfamilien-, Doppel- und Reihenhäuser – kontaktieren Sie bitte unsere Vertriebspartner:

Prok. Walter Mitterstöger, MA
Clemens Gamlich, MA