Einfamilienhaus Morgentau, Am Feuersbrunner Graben 8

Einfamilienhaus
Privater Seezugang
Erdwärme
Photovoltaik
Energiesparend
Alleineigentum
Nähe Wien

Symbolfoto

Verfügbar

Kaufpreis

715.000 €

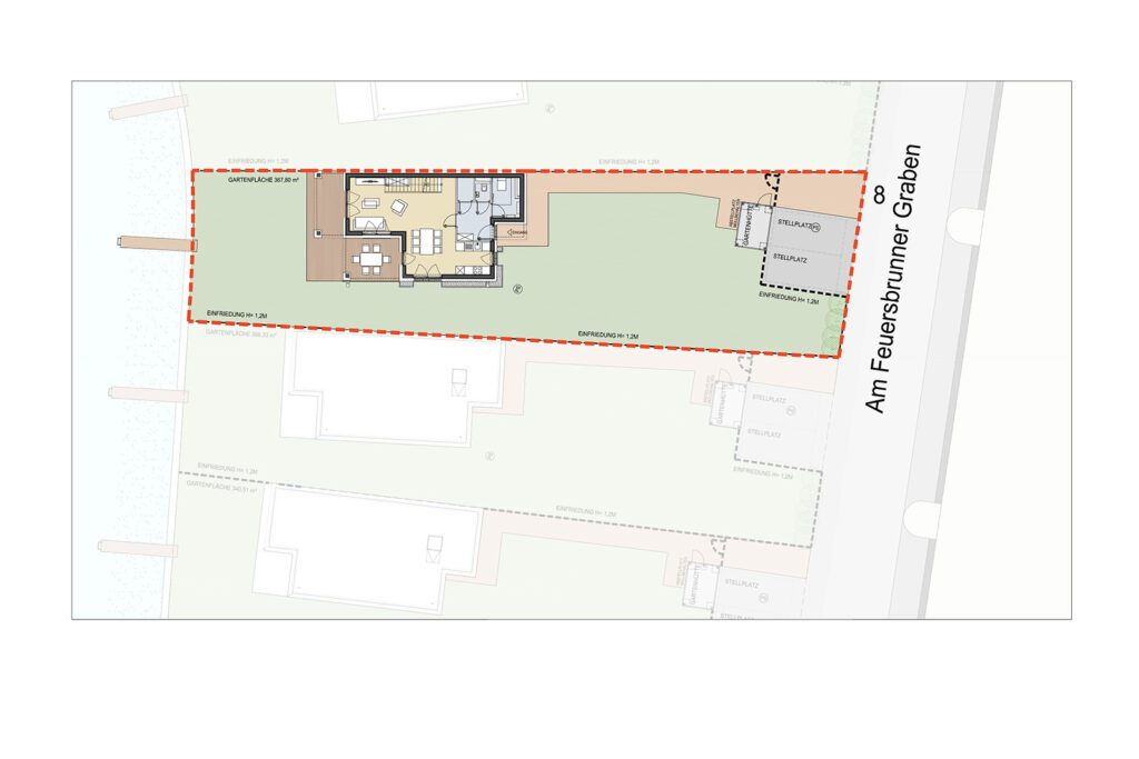
Wohnfläche

128,63 m²

Grundstücksfläche

532,28 m²

Miete pro Monat

Keine Mietoption vorhanden

Mietkauf-Option

Ja

Adresse

Am Feuersbrunner Graben 8
3484 Grafenwörth
Österreich
Download Grundriss

Terrasse EG

29,81 m²

Terrasse OG

-

Gartenhütte

6,15 m²

Räume

5

PKW-Stellplätze

2

Ausrichtung Terrasse

Westen

Plan & Lage

Perfekte Lage

Zwischen Wien und der Wachau

Der Sonnenweiher liegt in Grafenwörth in der Nähe von Schloss Grafenegg. Die naturbelassenen Donauauen im Süden. Der bis zu 40 Meter hohe, langgestreckte Höhenzug des Wagram im Norden. Nur 15 bis 20 Autominuten entfernt von Krems im Westen und Tulln im Osten. 25 Minuten von St. Pölten. Und 35 Minuten von der Wiener Stadtgrenze. Die naheliegende Franz-Josefs-Bahn ist mit dem Fahrrad leicht erreichbar und verbindet den Wagram mit Wien.

Sonnenweiher  „Morgentau“ – das komfortable Einfamilienhaus

Das Einfamilienhaus Morgentau mit insgesamt rund 129 m² Wohnfläche und fünf Zimmern besticht durch einen großzügig angelegten Wohnraum im Erdgeschoß. Von dort gelangen Sie über drei verschiedene Ausgänge in den eigenen Garten mit direktem Zugang zum See. Auf Ihrer geschützten Terrasse können Sie bei jedem Wetter den Seeblick genießen. Direkt vom Wohnbereich aus führt eine Stiege ins Obergeschoß: Die vier Schlafzimmer, das Bad mit Doppelwaschbecken sowie der breite Gang mit Stauraummöglichkeiten ist für all jene gedacht, die viel Raum zum Leben lieben. 

Nachhaltigkeit, Qualität & Effizienz der Umwelt zu Liebe

Unsere Seehäuser überzeugen durch ihre herausragende Energieeffizienz und Nachhaltigkeit. Dank der hochwertigen Ziegelbauweise und der modernen Wärmepumpe profitieren Sie von einem besonders energiesparenden Wohnkonzept. Dieses sorgt nicht nur für ein angenehmes Raumklima, sondern ermöglicht Ihnen sparsames Wohnen.

Geringer Energiebedarf

Sparsames Wohnen

Sole-Wasser-Wärmepumpe

Sole-Wasser-Wärmepumpe

Photovoltaik

Photovoltaik-Anlage

Fußbodenheizung

Fußbodenheizung

Fenster

Holz-Alu-Fenster mit 3-fach-Verglasung

Parkplätze

2 PKW-Stellplätze pro Haus

E-Ladestation

E-Ladestation vorbereitet

Sonnenschutz

Außenliegender Sonnenschutz

Ziegelbauweise

Ziegelbauweise

Breitbandversorgung

Breitbandversorgung

Kontakt & Anfrage

Felder, die mit einem * gekennzeichnet sind, sind Pflichtfelder.
Vorwahl
keyboard_arrow_down
No entries found

Sie können uns gern auch direkt per E-Mail kontaktieren: anfrage@mein-haus-am-see.at

Unser Kooperationspartner beraten Sie gerne.

Für unverbindliche Kauf-Anfragen oder Besichtigungstermine zu unseren Häusern am See – Einfamilien-, Doppel- und Reihenhäuser – kontaktieren Sie bitte unsere Vertriebspartner:

Dr. Funk Immobilien GmbH & Co KG
Prok. Walter Mitterstöger, MA
ICONIA GmbH
Clemens Gamlich, MA
RE/MAX Balance
Harald Seitner