Reihenhaus Wolkenspiel, Am Werd 39

Reihenhaus
Privater Seezugang
Erdwärme
Photovoltaik
Energiesparend
Alleineigentum
Nähe Wien

Symbolfoto

Verfügbar

Kaufpreis

Auf Anfrage

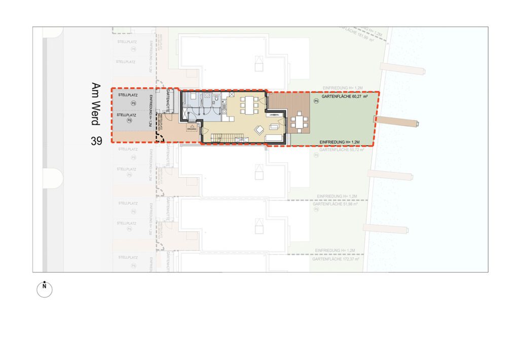
Wohnfläche

116,44 m²

Grundstücksfläche

209,80 m²

Miete pro Monat

Keine Mietoption vorhanden

Mietkauf-Option

Ja

Adresse

Am Werd 39
3484 Grafenwörth
Österreich
Download Grundriss

Terrasse EG

18,18 m²

Terrasse OG

-

Gartenhütte

6,15 m²

Räume

4

PKW-Stellplätze

2

Ausrichtung Terrasse

Osten

Plan & Lage

Perfekte Lage

Zwischen Wien und der Wachau

Der Sonnenweiher liegt in Grafenwörth in der Nähe von Schloss Grafenegg. Die naturbelassenen Donauauen im Süden. Der bis zu 40 Meter hohe, langgestreckte Höhenzug des Wagram im Norden. Nur 15 bis 20 Autominuten entfernt von Krems im Westen und Tulln im Osten. 25 Minuten von St. Pölten. Und 35 Minuten von der Wiener Stadtgrenze. Die naheliegende Franz-Josefs-Bahn ist mit dem Fahrrad leicht erreichbar und verbindet den Wagram mit Wien.

Sonnenweiher  „Wolkenspiel“ – das komfortable Reihenhaus

Im Reihenhaus Wolkenspiel mit rund 116 m² Wohnfläche und vier Zimmern trennen Sie nur wenige Schritte vom See. Schon der luftig anmutende Wohnraum mit offener Küche scheint direkt mit Ihrem Garten und dem See zu verschmelzen. Zwei Ausgänge führen auf die Terrasse, schon ein paar Schritte weiter befindet sich der Privatsteg. Sie wachen tagtäglich mit dem Blick auf das Wasser auf: zwei der drei Schlafzimmer im Obergeschoß sind Richtung Garten und See ausgerichtet. So starten Sie täglich angenehm in Ihren Tag

Nachhaltigkeit, Qualität & Effizienz der Umwelt zu Liebe

Unsere Seehäuser überzeugen durch ihre herausragende Energieeffizienz und Nachhaltigkeit. Dank der hochwertigen Ziegelbauweise und der modernen Wärmepumpe profitieren Sie von einem besonders energiesparenden Wohnkonzept. Dieses sorgt nicht nur für ein angenehmes Raumklima, sondern ermöglicht Ihnen sparsames Wohnen.

Geringer Energiebedarf

Sparsames Wohnen

Sole-Wasser-Wärmepumpe

Sole-Wasser-Wärmepumpe

Photovoltaik

Photovoltaik-Anlage

Fußbodenheizung

Fußbodenheizung

Fenster

Holz-Alu-Fenster mit 3-fach-Verglasung

Parkplätze

2 PKW-Stellplätze pro Haus

E-Ladestation

E-Ladestation vorbereitet

Sonnenschutz

Außenliegender Sonnenschutz

Ziegelbauweise

Ziegelbauweise

Breitbandversorgung

Breitbandversorgung

Kontakt & Anfrage

Felder, die mit einem * gekennzeichnet sind, sind Pflichtfelder.
Vorwahl
keyboard_arrow_down
No entries found

Sie können uns gern auch direkt per E-Mail kontaktieren: anfrage@mein-haus-am-see.at

Unser Kooperationspartner beraten Sie gerne.

Für unverbindliche Kauf-Anfragen oder Besichtigungstermine zu unseren Häusern am See – Einfamilien-, Doppel- und Reihenhäuser – kontaktieren Sie bitte unsere Vertriebspartner:

Prok. Walter Mitterstöger, MA
Clemens Gamlich, MA